Miskolc - Csabai kapu1
Csak Nálunk!
Csak Nálunk!Eladó Régi ár: 45.000.000 Ft (
€ 128.154)
Új ár: 43.000.000 Ft ( € 122.458)Csabai kapuban ház eladó!
Értékesítő: Lőkös Zoltán
Új ár: 43.000.000 Ft ( € 122.458)Csabai kapuban ház eladó!
| Azonosító: | 4873 |
| Típus: | ház |
| Al-típus: | családi ház (önálló) |
| Megye: | Borsod-Abaúj-Zemplén |
| Utca: | Szigethy Mihály utca |
| Méret: | 128 nm |
| Telek méret: | 660 nm |
| Szobák száma: | 3 |
| Állapot: | felújítandó |
| Építőanyag: | tégla |
| Erkély / terasz: | nincs |
| Kilátás: | udvari |
| Parkolás: | garázs |
| Fűtés: | gázkonvektor |
| Villany: | épületben |
| Gáz: | épületben |
| Víz: | épületben |
| Csatorna: | épületben |
| Tömegközlekedés: | busz |
Hívjon: +36-70-429-5999
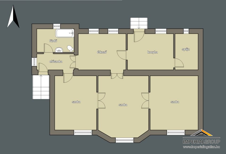
Írjon nekem!Miskolc Csabai kapuban a Szigethy Mihály utcában, kiváló környéken, 660 nm-es telken, 128 nm lakóterületű, 3 szobás, gázkonvektor fűtéses családi ház, melléképülettel, könnyűszerkezetes garázzsal együtt eladó!
Tárgy ingatlan téglából épült, fa tetőszerkezettel és cserép fedéssel rendelkezik. A tetőszerkezetet a tulajdonos ács által átvizsgáltatta és rendben találták!
Helyiséglista:
- 3 szoba, konyha, étkező, kamra, fürdőszoba WC-vel, pince (15 nm), + melléképület, garázs
Ir.ár: 43 M Ft.
Amennyiben megtekintené, vagy további részletek érdeklik, kérem, hogy keressen a megadott elérhetőségeim valamelyikén.
Amennyiben az ingatlan megvásárlásához hitelre van szüksége vegye igénybe ingyenes hitelügyintézés szolgáltatásunkat. Bővebben...
Hasonló ingatlanok:
Mezőkövesd
részletek »
| Ref.: | 4902 |
| Megye: | Borsod-Abaúj-Zemplén |
| Típus: | ház |
| Méret: | 73 m2 |
| Ár: | 32.900.000 Ft |
Eger
részletek »
| Ref.: | 4762 |
| Megye: | Heves |
| Típus: | ház |
| Méret: | 616 m2 |
| Ár: | 349.000.000 Ft |
Miskolc
részletek »
| Ref.: | 4857 |
| Megye: | Borsod-Abaúj-Zemplén |
| Típus: | ház |
| Méret: | 90 m2 |
| Ár: | 51.900.000 Ft |



































RSS