
| Azonosító: | 4093 |
| Típus: | vendéglátó |
| Al-típus: | étterem, cukrászda, gyorsétterem |
| Megye: | Borsod-Abaúj-Zemplén |
| Méret: | 660 nm |
| Telek méret: | 182 nm |
| Helyiségek száma: | 13 |
| Parkolás: | közterületen fizetős |
| Fűtés: | gáz |
| Tömegközlekedés: | busz villamos |
| Extrák: | klíma riasztó |
| Nyomtatás dátuma: | 2026.04.18. 11:48:33 |
Hívjon: +36-70-429-5999
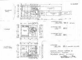
Írjon nekem!Miskolc belvárosában kiváló helyen a történelmi jelentőségű Kis avason, összesen 660 nm-es, homokkőből épült, cserépfedéses, 4 bejárattal rendelkező, 13 helyiségből álló, XVI. századi műemlék épület+ két ágú pincerendszerrel eladó.
Az épület összközműves, exkluzív középkori kialakítású, színes ólomüveg ablakokkal, fekete gránit padlóval, már a XVI. századtól vendéglátó célokat szolgált híres borkereskedő pincéjeként, a jelenlegi tulajdonosa pedig a 60-as évektől üzemelteti sikeresen, kitűnő üzleti eredménnyel.
Fűtését 2 db gáz cirkó kazán biztosítja, a hő leadását pedig radiátorok biztosítják.
Az étterem 50, a söröző 70, a pince borozó pedig 100 fő kiszolgálására biztosít elegendő helyet, így a teljes étterem és Söröző összesen 220 fő befogadására alkalmas. Az étterem a mai kornak megfelelő rozsdamentes konyhatechnikai eszközökkel, és étellifttel felszerelt, mely biztosítja az ételek gyorsan és magas minőségben való elkészítését, felszolgálását. Mind az étteremben, mind a sörözőben a vendégtér egyedi fa bútorokkal bútorozott.
A professzionális konyhai gépek/eszközök, és egyéb berendezési tárgyak igény szerint külön opcionálisan megvásárolhatóak.
Utolsó felújítások 2016:
Homlokzat renoválás, konyha berendezések/gépek cseréje, hőcserélős szellőzőberendezés beszerelése, klíma beépítés
Helyiséglista:
- pince (borozó) 245 m2
- földszint (söröző) 125 m2
- emelet (étterem/konyha) 125 m2
- tetőtér (kiszolgáló helyiségek): 165 m2
Ir.ár : 139 M.
További részletekért kérem, hogy keressen a megadott elérhetőségeim valamelyikén!











RSS