
| Azonosító: | 4356 |
| Típus: | iroda |
| Al-típus: | irodaházban |
| Megye: | Nógrád |
| Utca: | Hársfa sor |
| Méret: | 27 nm |
| Telek méret: | 140590 nm |
| Parkolás: | saját fedetlen |
| Fűtés: | |
| Tömegközlekedés: | busz |
| Extrák: | elektromos garázskapu, kertkapu hőszivattyú kamerarendszer klíma riasztó |
| Nyomtatás dátuma: | 2026.04.29. 21:42:12 |
Hívjon: +36-70-272-0099
Írjon nekem!SZÉCHENYI2020
AZ INKUBÁTORHÁZ AZ EURÓPAI UNIÓ ÉS A MAGYAR KORMÁNY TÁMOGATÁSÁVAL JÖTT LÉTRE
"BEFEKTETÉS A JÖVŐBE"
Szügy Község Önkormányzata a Terület- és Településfejlesztési Operatív Program keretében megvalósuló, TOP-1.1.2-16-NG1-2017-00003 számú, „Inkubátorház Szügyön” elnevezésű projekttel támogatást nyert.
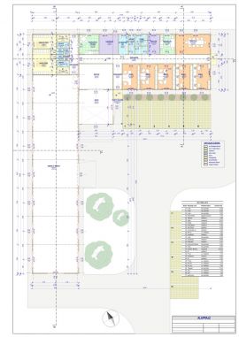
Szügy község külterületén, 140.590 m2 telken épült, összesen 593m2 hasznos alapterületű inkubátorházban, irodák és műhely kiadó.
Szügy község megközelítése:
- Közúton Budapestről Vác érintésével Balassagyarmaton át érhető el a legegyszerűbben, mintegy 80 kilométernyi utazással; hasonló távolságnak tekinthető az az útvonal is, ha az M3-as autópályán indulunk el a Bagi lehajtóig, majd az Aszód-Galgaguta-Magyarnándor útvonalat követve közelítjük meg. A község Balassagyarmat felől a 2108-as úton érhető el, Őrhalom felé a 21 129-es út indul innen.
- Vonattal a MÁV 78-as számú Aszód–Balassagyarmat–Ipolytarnóc-vasútvonalán közelíthető meg. A helyi megállóhely Mohora és Balassagyarmat között található; közúti elérését a 21 129-es útból kiágazó 21 328-as számú mellékút teszi lehetővé.
- Helyközi autóbuszvonalakː 460, 1306, 1308, 3312, 3313, 3315, 3318, 3320, 3321, 3325, 3326, 3329
Inkubátorház általános leírása:
Az inkubátorház 2020 októberében kerül átadásra, mely 2 fő épületrésszel rendelkezik (műhely és irodák). Az épület acélváz szerkezetű, külső héjazata 10 cm-es szendvicspanel, az irodák és szociális helyiségek belső feléről szigetelt gipszkarton előtéttel és válaszfalakkal vannak szerelve.
Az épület műanyag, fokozott hőszigetelésű 3 rétegű hőszigetelt nyílászárókkal felszerelt. A fűtési rendszer levegő-víz hőszivattyúról üzemel, a hőleadás mindkét épületrészben radiátorokon keresztül történik, ill. a használati meleg vizet is a hőszivattyúk termelik. A műhely műgyanta, az irodák épületrész kerámia és laminált parketta padozattal rendelkeznek.
Az inkubátorházba beköltözőket illetően:
Az inkubációs fejlesztés végső haszonélvezői olyan újonnan betelepülő mikro-, kis- és középvállalkozások lehetnek, amelyek a betelepülés időpontjában induló vállalkozásnak minősülnek (legfeljebb öt éve került bejegyzésre). Ezen vállalkozások a betelepüléstől számított legfeljebb 5 évig részesülhetnek inkubációs szolgáltatásban.
Extrák:
- 1. sz. épületrész, amely irodaház funkciót tölt be, teljes körűen klimatizált
- riasztóval és kamerarendszerrel ellátott
Felépítmények:
- 1. sz. épületrész: összesen 197,6 m2 alapterületű, jellemzően irodahelyiségek, tárgyaló, irattár, közlekedő, mosdók, teakonyha, kazánház található a felépítményben
- 2. sz. épületrész: összesen 395,4 m2 alapterületű, szerelő-műhely, zsilip, raktár, közlekedő, női-férfi öltöző, szociális helységek találhatóak a felépítményben
Érdeklődés, megtekintés vagy bármilyen további információ igényével kapcsolatban kérem keressen a megadott elérhetőségeim valamelyikén!
Bérleti díj:
Iroda: 1000 Ft/m2 + rezsi
Műhely: 1000 Ft/m2 + rezsi
























RSS