
Csak Nálunk!| Azonosító: | 4659 |
| Típus: | vendéglátó |
| Al-típus: | disco, kocsma, pub, borospince |
| Megye: | Borsod-Abaúj-Zemplén |
| Utca: | Kisavas Első sor |
| Méret: | 184 nm |
| Telek méret: | 109 nm |
| Helyiségek száma: | 8 |
| Parkolás: | közterületen fizetős |
| Fűtés: | hőszívattyú |
| Tömegközlekedés: | busz |
| Extrák: | klíma riasztó |
| Nyomtatás dátuma: | 2026.04.18. 11:48:05 |
Hívjon: +36-70-429-5999
Írjon nekem!Energiatakarékos, rendkívül kis rezsijű hőszivattyús hibrid rendszerben fűthető!
Miskolc belvárosában kiváló helyen, a történelmi Kisavason, összesen 184+329 nm-es, téglából épült, cserépfedéses, 2 bejárattal rendelkező rendezvényház, két ágú pincerendszerrel eladó.
Fűtését hőszivattyúra kötött fan-coil rendszer biztosítja és szükség esetén, kiegészítésként egy kondenzációs gáz cirkó kazán is rendelkezésre áll. A fűtést a földszinten padlófűtés és fan coil készülék, az emeleteken fan-coil készülékek biztosítják. Az épület hűtése a hőszivattyúról a fan-coil készülékekkel történik. A pince meleg levegő keringetéssel fűthető.
A 17. században épült borház 2014-ben teljes újjáépítésen és bővítésen esett át, melyet extra műszaki és esztétikai tartalom, valamint kiváló anyag és kivitelezői minőség jellemez.
Főbb felújítások:
- tető teljes cseréje
- bővítés
- nyílászárók, beltéri ajtók és bejárati ajtó csere (mind Ropant prémium minőségű fa nyílászáró)
- fűtésrendszer korszerűsítés, hőszivattyú és kondenzációs gázkazán beépítés, teljes épületgépészet (villany, víz, gáz), tűzvédelmi rendszer kiépítése
- mosdók, konyha, pult kialakítása
- hideg-meleg burkolás
- pincerendszer teljes felújítása
- 10 cm-es dryvit rendszerű homlokzatszigetelés
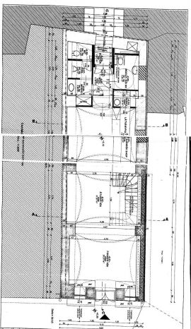
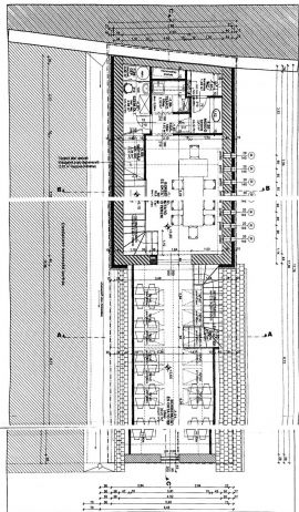
Helyiséglista:
- pince (két ág) 329 m2
- földszint (vendéglátó egység/mosdók/konyha) 87 m2
- emelet I. (konyha/tárgyaló/mosdók) 59 m2
- emelet II. (iroda/mosdó): 39 m2
Az ingatlan jelenleg rendezvényházként és irodaként is funkcionál, de szálláshelyként, vendéglátásra, borozóként, vagy prémium minőségű magánpinceként is hasznosítható. Működéshez szükséges engedélyekkel, berendezési tárgyakkal rendelkezik!
Ir.ár: 99,8 M.
A konyhai gépek/eszközök, és egyéb berendezési tárgyak igény szerint külön opcionálisan megvásárolhatóak.
További részletekért kérem, hogy keressen a megadott elérhetőségeim valamelyikén!























RSS